Planning Approval Granted for 21 Luxury Chalets at Kilworth Springs Golf Club
19th November 2025ADM lead the successful planning process with key advice on Biodiversity Net Gain
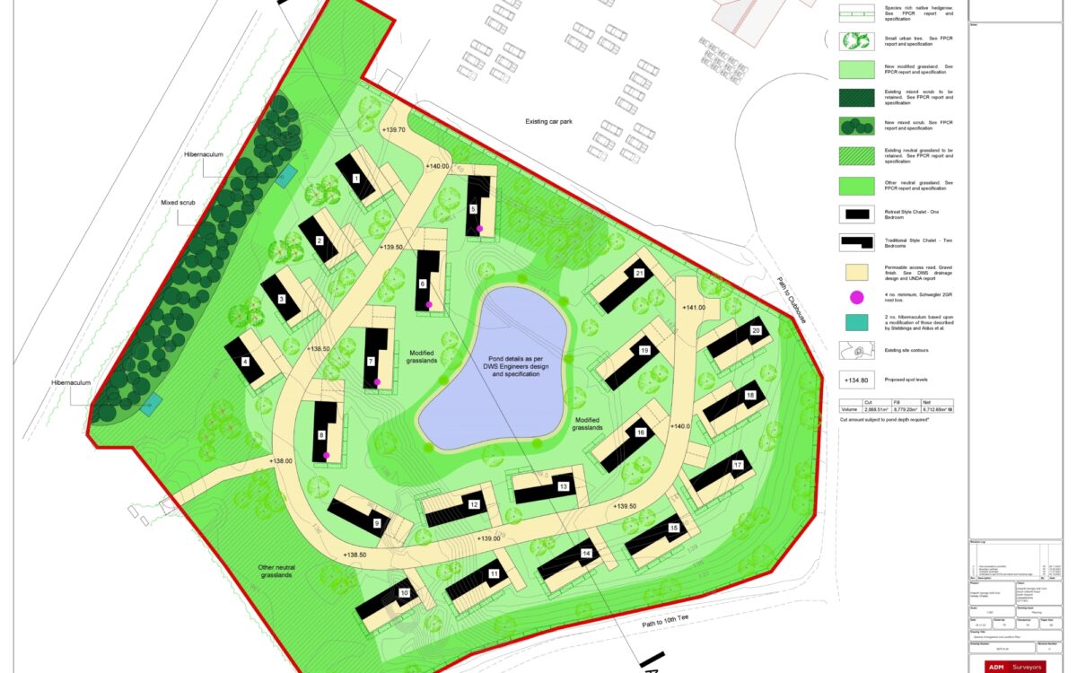
ADM Surveyors have successfully secured planning permission for the development of 21 luxury holiday chalets at Kilworth Springs Golf Club, marking a major milestone in a three-year collaboration with Clients, Simon and Heidi Vicary.
In partnership with Stay at the Barns, the project will make Kilworth Springs one of the few golf clubs in Leicestershire to offer on-site overnight accommodation, creating exciting opportunities for stay-and-play breaks and enhancing the club’s appeal to visitors from across the region and beyond.
The approved scheme will see the creation of 21 premium chalet units nestled within the picturesque surroundings of Kilworth Springs, with construction expected to commence in spring 2026.
ADM surveyors worked in collaboration with Ecologists FPRC who completed Preliminary Ecological Appraisals, Protective Species reports and finally a Bio Diversity Net Gain Report. The detailed reports were generated to inform how Kilworth Springs Golf club would deliver the 10% ecological betterment on site to mitigate any habitat losses by the development.
FPRC also produced a Construction Ecological Management Plan (CEMP) for Biodiversity which outlines how Ecology on the construction site will be protected during the construction works.
ADM Surveyors are now preparing construction drawings and working on a discharge of conditions application to address the outstanding planning requirements.
Our association with the Vicary family goes back three generations. ADM Surveyors director Steven Masic commented. "My grandfather Dusan Masic was a groundworker and worked with Roger Vicary in the 60's and 70's. I played golf and Kilworth springs when I was young and my brother Daniel was a member of the club for a long period. Our business has hosted many events at Kilworth Springs and our Golf Day in aid of Help for Hero's is a highlight in the calendar."



