Working with long-term client Blakemore Property Limited, ADM was commissioned to provide Architectural Services, Quantity Surveying and Contract Administration on the development of a brand-new service station and convenience store in Laceby, Grimsby.


Winner of the ProCon Sustainability Award in 2015, Whitwell House is a fabulous example of sustainable construction. The innovative design features an array of energy efficient features and was the first Passivhaus certified project in Leicestershire.


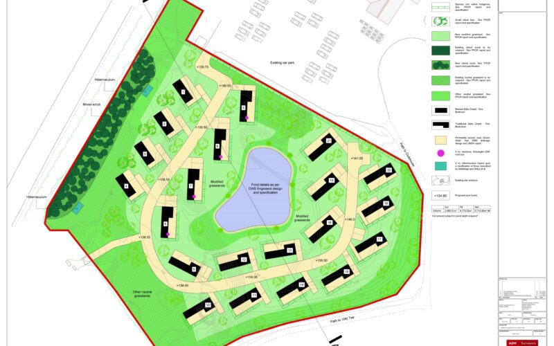
Working on behalf of long-term client Prime Life Ltd, ADM was commissioned to act as Quantity Surveyor on the development of Phoenix Park Care Village in Scunthorpe, Lincolnshire.


“Steve and the team at ADM surveyors have managed our recent kitchen extension and garage conversion, from technical drawings to obtaining planning and building regs, going to tender, sourcing the builders and site management. ADM were expert advisors throughout the process offering independent advice and points of view, they identified key areas of savings in the project and helped the project come in on time and under budget. We held monthly meetings with ADM and the builders and any issues arising were promptly addressed, they gave me peace of mind on the valuations and I would highly recommend their services”.
